stan na prodaju Novi Sad 45m2 542839
Opis Nekretnine
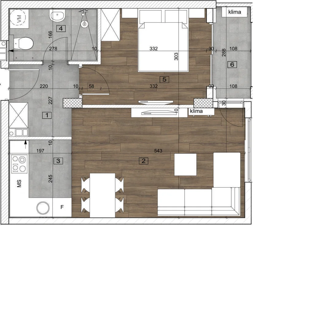
Predstavljamo vam stan u novom kompleksu koji se nalazi u neposrednoj blizini uz novi gradski park, a svi stanovi su osunčani tokom celog dana, što ih čini vrlo svetlim i prozračnim. Osim toga, kompleks poseduje i veliko privatno dvorište sa propratnim mobilijarom za opuštanje i dodatni komfor svih stanara. U blizini se nalazi nekoliko osnovnih škola, vrtića, brojne prodavnice, hipermarketi, restorani, apoteke, pošta, pekare… Takođe, kompleks je savršeno povezan sa glavnim saobraćajnicama i linijama gradskog prevoza, što vam omogućava brz i lak pristup svim delovima grada. Materijali korišćeni pri izgradnji pažljivo su odabrani kako bi osigurali dug vek trajanja i lako održavanje. Energetski efikasna rešenja dodatno smanjuju troškove grejanja i hlađenja, pružajući optimalan komfor tokom cele godine. Sigurnost naših stanara je prioritet. Kompleks će biti opremljen video nadzorom i optikom, dok će garaža imati rampu i videonadzor. U garaži su obezbeđena mesta sa punjačima za električna vozila, a postoji i mogućnost postavljanja dodatnih punjača po potrebi, što omogućava fleksibilnost i prilagođavanje sve većem broju električnih automobila. Stanari takođe imaju pristup pametnim tehnologijama za daljinsko upravljanje sigurnosnim sistemima i režimima pristupa. Sve je projektovano tako da olakša svakodnevicu i pruži mir, uz najnovija rešenja za zaštitu i komfor. U blizini su nova moderna škola, brojne linije gradskog prevoza i glavne saobraćajnice, što omogućava brz i jednostavan pristup svim delovima grada. Sve što vam treba, od prodavnica i restorana do sportskih centara, nalazi se na dohvat ruke, pružajući savršen balans između mirnog života i gradske dinamike. Za više informacija pozovite...

Novi Sad, Reg.br. 711








